5 Γέφυρες και 3 C&C στον Εξωτερικό Δακτύλιο Θεσσαλονίκης
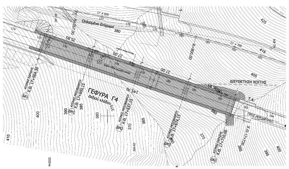
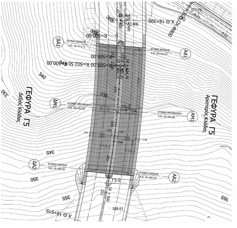
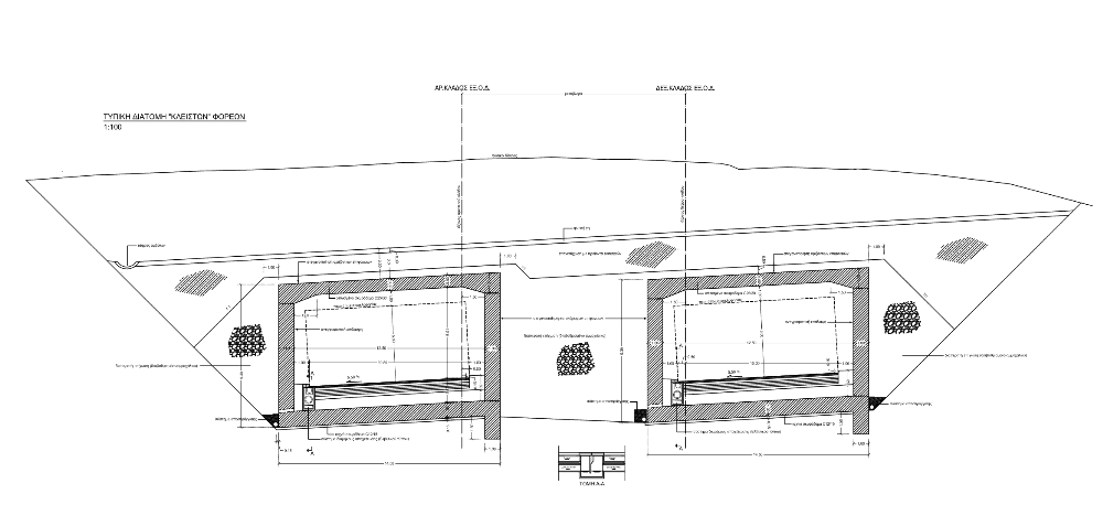
Εκπόνηση των Οριστικών μελετών πέντε (5) γεφυρών Γ2, Γ4, Γ5, Γ7 και Γ9 και τριών τεχνικών C&C T2, T3 και Τ4 του τμήματος «Α/Κ Χορτιάτη – Α/Κ Ραιδεστού» (59.4.3) της Εξωτερικής Περιφερειακής Οδού Θεσσαλονίκης.
| Φορέας | ΕΓΝΑΤΙΑ ΟΔΟΣ Α.Ε. |
|---|---|
| Τοποθεσία έργου | Θεσσαλονίκη |
| Έτος: | 2016-2020 |