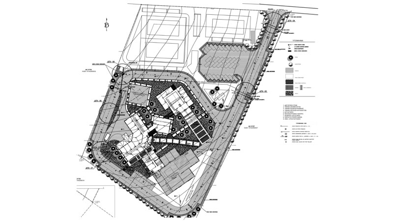
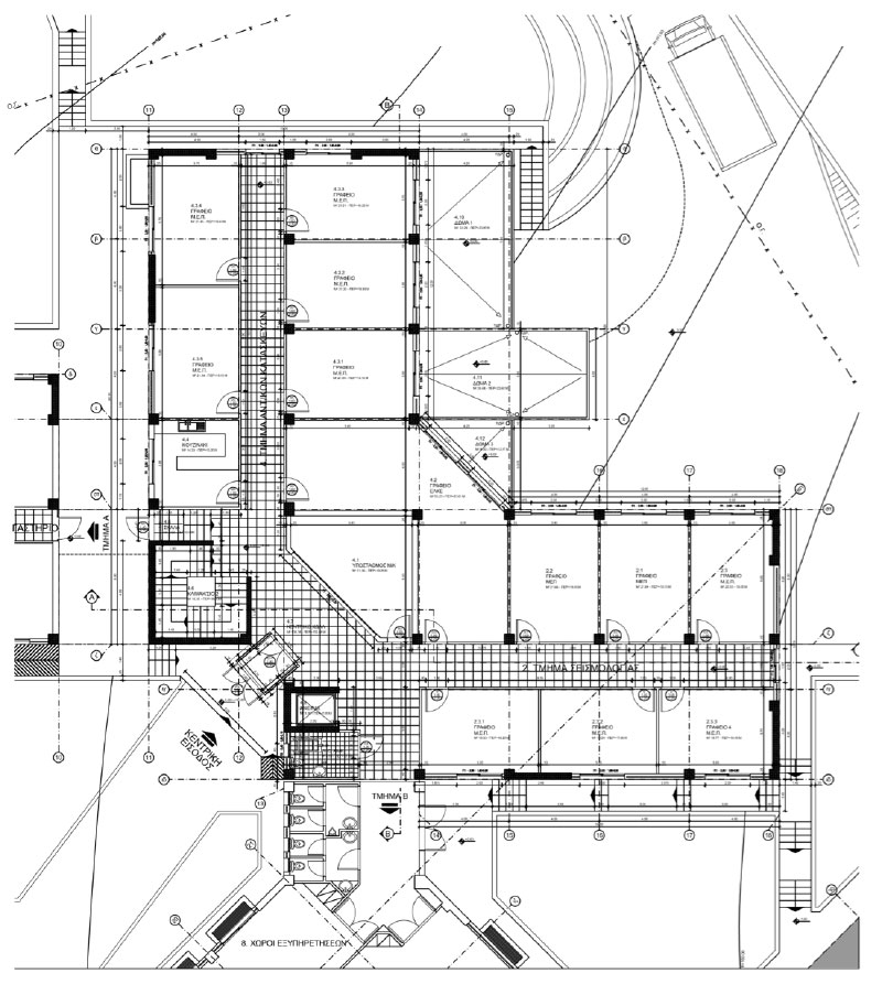
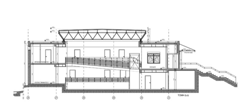
Κτίριο και εργαστηριακές εγκαταστάσεις Ι.Τ.Σ.Α.Κ.

Οριστικές μελέτες και μελέτες εφαρμογής Αρχιτεκτονικών, διαμόρφωσης περιβάλλοντος χώρου, Στατικών, ενεργητικής – παθητικής πυροπροστασίας, θερμομόνωσης και έκδοση οικοδομικής άδειας για τα κτίρια και τις εργαστηριακές εγκαταστάσεις του Ινστιτούτου Τεχνικής Σεισμολογίας και Αντισεισμικών Κατασκευών (Ι.Τ.Σ.Α.Κ.). Συνολική επιφάνεια 2,939 μ2 και περιβάλλων χώρος συνολικής επιφάνειας 3,794 μ2   σε οικόπεδο 17,500 μ2 . Το έργο δημοπρατήθηκε και κατασκευάσθηκε (Α΄φάση).

Φορέας Δ.Δ.Ε./Π.Κ.Μ- Ι.Τ.Σ.Α.Κ.
Τοποθεσία έργου Θεσσαλονίκη
Έτος: 2010