Εμπορευματικός Σταθμός Κρατικού Αερολιμένα Θεσσαλονίκης «ΜΑΚΕΔΟΝΙΑ»

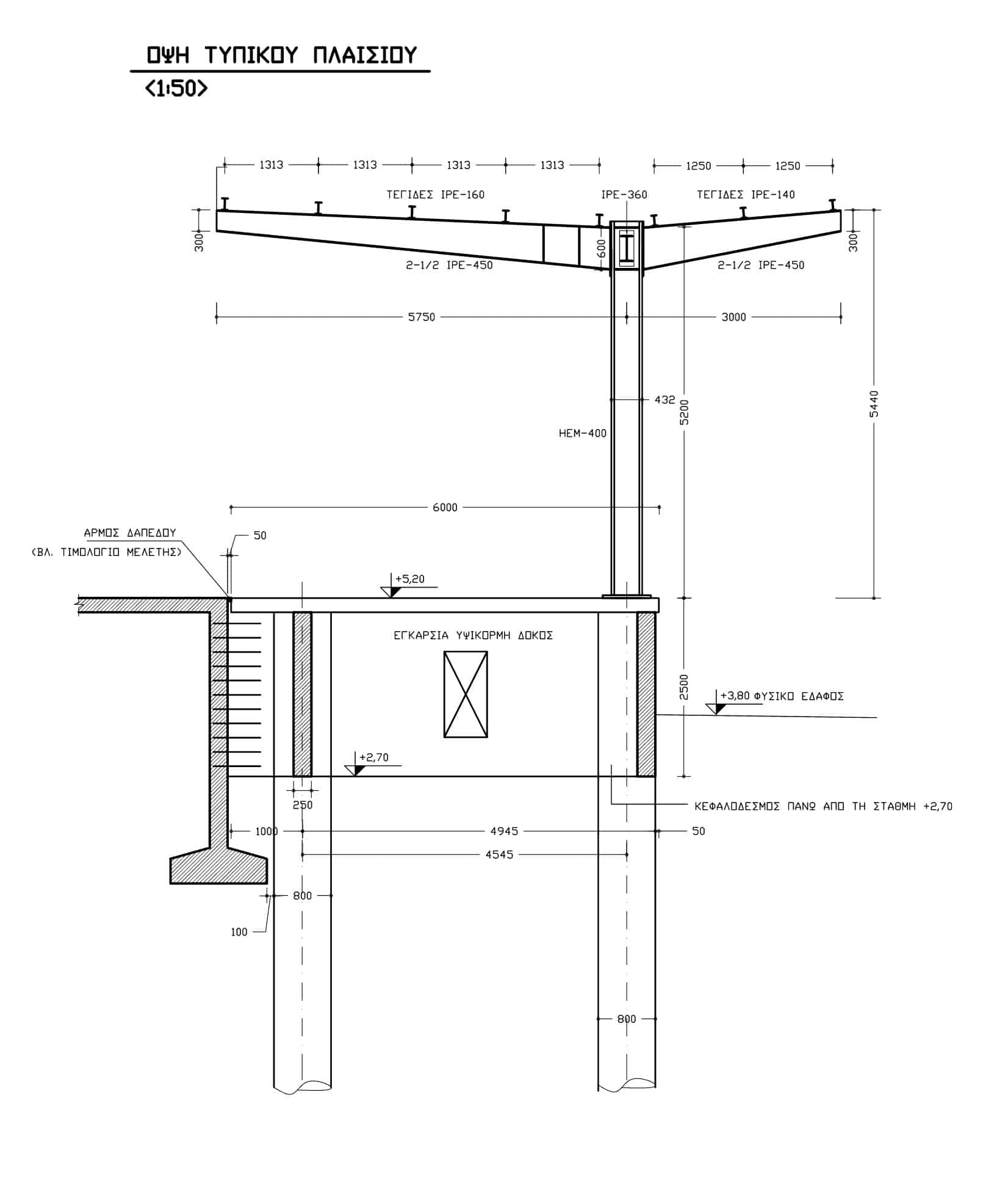
Παροχή υπηρεσιών Συμβούλου για την υλοποίηση του έργου συντήρησης, διαρρύθμισης και επέκτασης του Εμπορευματικού Σταθμού εντός του Κρατικού Αερολιμένα Θεσσαλονίκης «ΜΑΚΕΔΟΝΙΑ». Συγκέντρωση, έλεγχος και αξιολόγηση των στοιχείων που είναι απαραίτητα για τη δημοπράτηση του έργου. Έλεγχος και αξιολόγηση του βαθμού πληρότητας της Τεχνικής μελέτης που διαθέτει η Υ.Π.Α. Εκπόνηση της Οριστικής μελέτης, σύνταξη όλων των συμβατικών τευχών δημοπράτησης. Αφορά διαρρύθμιση και ανακαίνιση του υπάρχοντος κτιρίου Εμπορευματικού Σταθμού, κατασκευή 2 μεγάλων μεταλλικών υπόστεγων αποθηκευτικών και γραφειακών χώρων και διαμόρφωση περιβάλλοντος χώρου διακίνησης και στάθμευσης. Το έργο δημοπρατήθηκε και κατασκευάσθηκε.

Φορέας Ε.Υ.Δ.Ε Αεροδρομίων Βορείου Ελλάδος
Τοποθεσία έργου Θεσσαλονίκη
Έτος: 2000