Γέφυρα Γ3 Εξωτερικού Δακτυλίου Θεσσαλονίκης
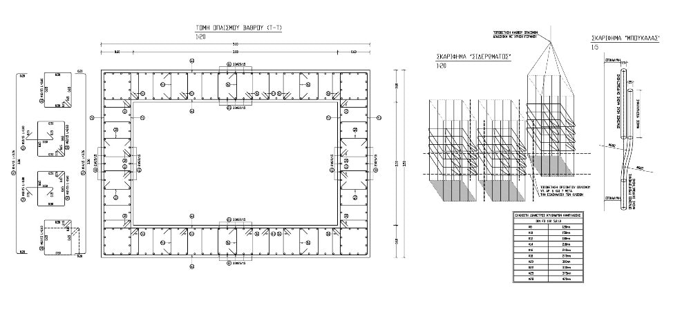
ΠΡΟΚΑΤΑΡΚΤΙΚΗ ΚΑΙ ΟΡΙΣΤΙΚΗ ΜΕΛΕΤΗ ΓΕΦΥΡΑΣ [Γ3] στη Χ.Θ. 17+155 του τμήματος 59.4.3 (Α/Κ Χορτιάτη-Α/Κ Ραιδεστού) του Εξωτερικού Οδικού Δακτυλίου Θεσσαλονίκης. Γέφυρα τεσσάρων (4) ανοιγμάτων συνολικού μήκους Lw=31,85+33,00+33,00+31,85= 129,70m δύο κλάδων με πλάτος εκάστου κλάδου 14,10μ. Ανωδομή με προκατα-σκευασμένες δοκούς προεντεταμένου σκυροδέματος, πρόπλακες και χυτή πλάκα συνεχή (μέσω πλακών συνέχειας) πάνω από τα μεσόβαθρα. Οι δοκοί εδράζονται επί ελαστομεταλλικών εφεδράνων στα βάθρα. Θεμελίωση με έγχυτους φρεατοπάσσαλους.
| Φορέας | ΕΓΝΑΤΙΑ ΟΔΟΣ Α.Ε. |
|---|---|
| Τοποθεσία έργου | Θεσσαλονίκη |
| Έτος: | 2017 |